REQUEST A TOUR If you would like to see this home without being there in person, select the "Virtual Tour" option and your agent will contact you to discuss available opportunities.
In-PersonVirtual Tour

$ 1,110,000
Est. payment /mo
Active
Lot 1 Hawkins AVE Ronkonkoma, NY 11779
1.46 Acres Lot
UPDATED:
Key Details
Property Type Vacant Land
Listing Status Active
Purchase Type For Sale
MLS Listing ID 823276
HOA Y/N No
Rental Info No
Lot Size 1.456 Acres
Acres 1.456
Lot Dimensions 384 x 198
Source onekey2
Property Description
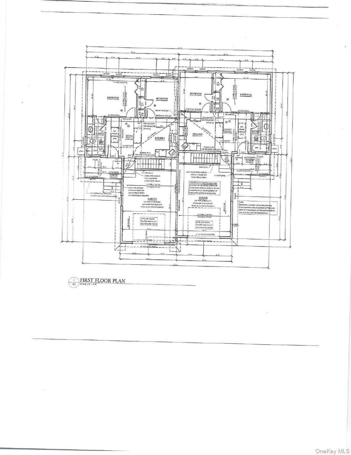
Great Investment Opportunity -Land with Plans to build 3 -2 Family Homes with Basement & Garage, Easy For Commuting Location By LIRR, Seller To Supply: Approved Plans, & Health Department Approval. Up To Permit! Purchaser to Pay Highway fees & Supply Insurance To Obtain Permits. Price Per Unit Is $185,000 Total Of 6 Units!
Location
State NY
County Suffolk County
Interior
Fireplace No
Building
Sewer Cesspool
Schools
Elementary Schools Hiawatha School
Middle Schools Samoset Middle School
High Schools Sachem
School District Sachem
Others
Senior Community No
Special Listing Condition None
Listed by Coldwell Banker American Homes • Joseph A. Bartone

GET MORE INFORMATION
Quick Search





